
Traditional with modern style. This two story home has four bedrooms, three bathrooms and a one car garage. Enjoy an open floor plan that maintains separation and privacy when needed. Two flex spaces are given, one on each floor. It even provides a get away office space right off of the main living areas. The design was created to fit on a typical in-town lot. The pass-through Utility/Mudroom gives great, functional separation from the one-car garage.
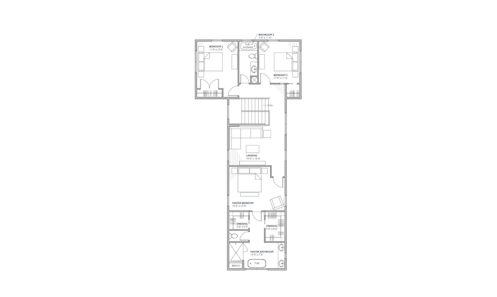
Heated Sq Ft2,580Total Sq Ft3,450Bedrooms4Bathrooms3ArchitectBlair Austin Studio